Stan surowy zamknięty (deweloperski).
Dom modułowy nadający się do całorocznego zamieszkania grubość wełny 20cm.
Wykończony wewnątrz i z zewnątrz deską świerkową..
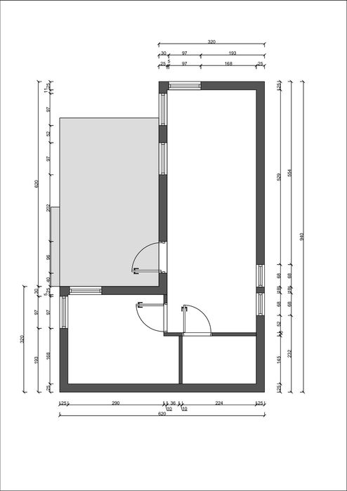
Konstrukcja
Podłoga wykonana z profili stalowych dających zwiększoną wytrzymałość, sztywność i mobilność konstrukcji co pozwala na wielokrotne przestawianie i transportowanie domku.
Konstrukcja budynku wykonana z wysokiej jakości drewna świerkowego certyfikowanego w klasie C-24 , pokrytego płytą OSB 3 nadającą wysoką odporność mechaniczną.
Ocieplony wełną mineralną grubości 20cm o współczynniku lambda 0,36W/mk co razem z wewnętrzna membrana metalizowana odbijającą ciepło poprawia efektywność cieplną ścian oraz sufitu poprzez odbicie ciepła i zatrzymanie go wewnątrz pomieszczenia.
Wykończenie
Ściana zewnętrzna – elewacja świerkowa w klasie AB, dodatkowo wstawki ozdobne z blachy elewacyjnej w wybranym kolorze, membrana paro przepuszczalna. Wewnątrz pomieszczeń wykończono deską elewacyjną, i łazienka wykończona płytą OSB zabezpieczone przed wilgocią. Pod poszyciem ściany wewnętrznej znajduje się membrana metalizowana paroszczelna.
OKNA trzy szybowe w kolorze zewnętrznym szt. 8 ciepłe drzwi wejściowe
Poszycie dachu blacha Trapezowa w czarnym kolorze wraz z orynnowaniem.
Instalacje
Pomieszczenia wyposażone w rozdzielnie elektryczną łącznie w 25 punktów elektrycznych, w tym oświetlenie zewnętrzne włączniki i gniazdka
Wodna instalacja wraz z miejscem na podgrzewacz elektryczny 50l, miejsce na podłączenie pralki, kanalizacja z odpływem w jednym punkcie.
Transport i montaż to koszt od 8900zł zależny od odległości.
Montaż podstawowy polega na posadowieniu domku, wypoziomowaniu, montażu obróbek zewnętrznych i wewnętrznych, montażu rynien z rurami spustowymi, obróbki dekarskie. W cenie montażu podstawowego nie wkalkulowano kosztu wykonania przyłącza prądowego, wodnego i kanalizacyjnego. Stopy fundamentowe wykonuje kupujący.
Za przygotowanie drogi dojazdowej i terenu w miejscu montażu odpowiada kupujący.








